Obra Nueva, Venta
209.950€


































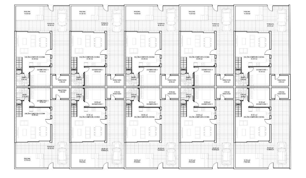
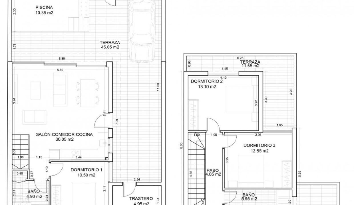
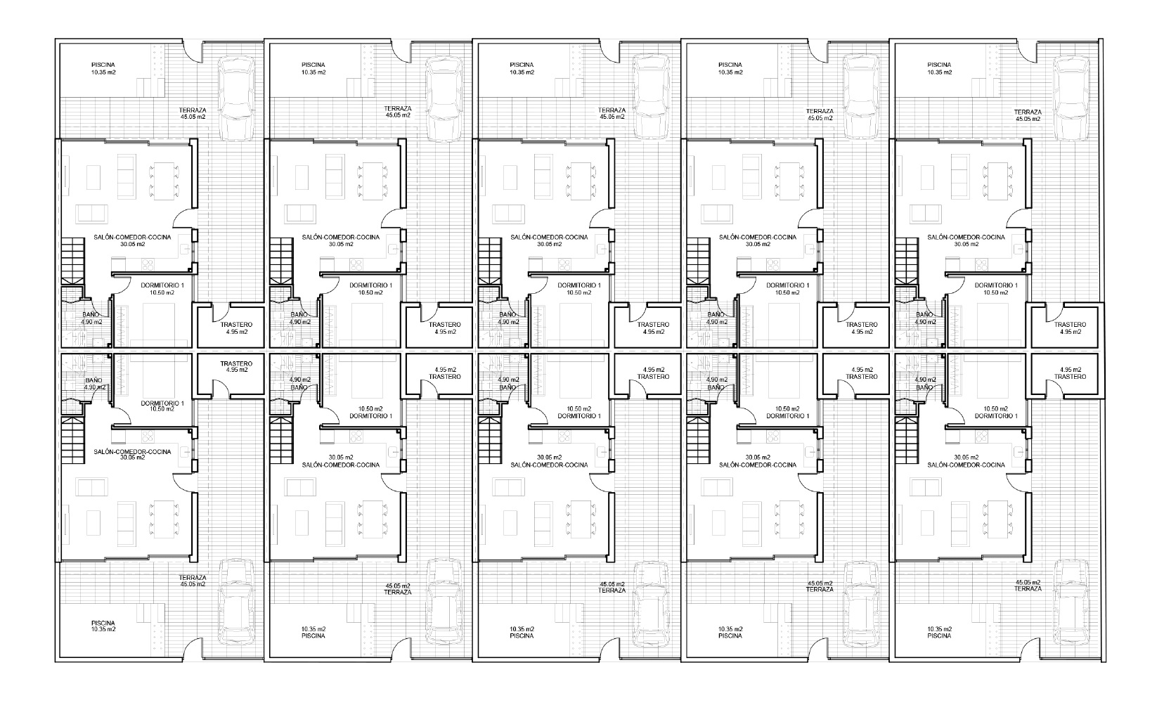
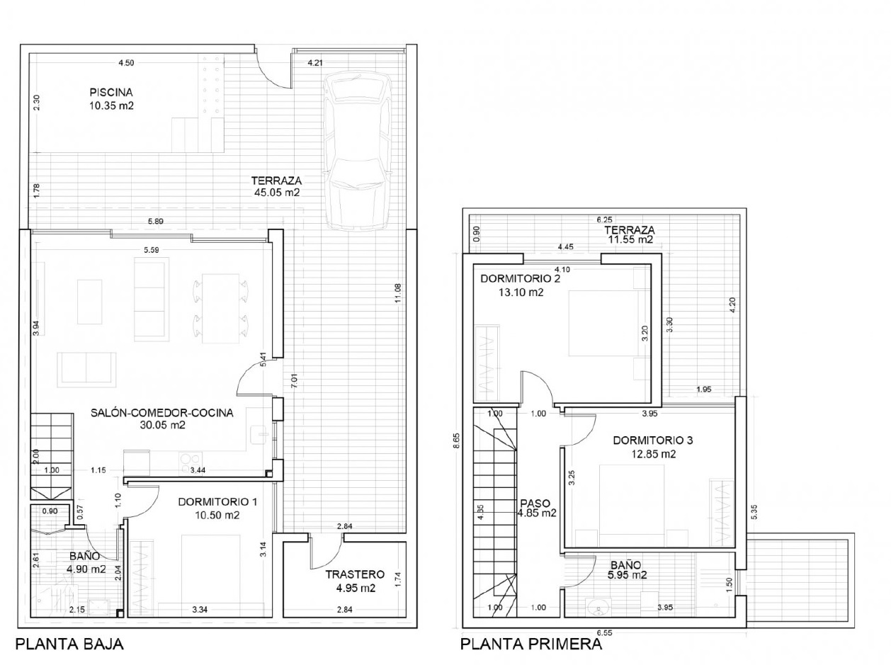
Son villas independientes con 3 dormitorios y piscina privada. Estas villas, de bonito diseño moderno, han sido cuidadosamente diseñadas para proporcionar el hogar perfecto con amplias terrazas en la planta baja, piscina privada y ventanas de grandes dimensiones.
En la planta baja nos encontramos con un salón comedor cocina de más de 25 m2, un dormitorio doble, un baño. La planta superior ofrece otros 2 dormitorios dobles y una terraza de 11 m2 en el dormitorio principal. Opcionalmente se puede construir un solárium de 37 m2. Aparcamiento dentro de la misma parcela, una habitación extra y/o un práctico trastero.
Las calidades de esta vivienda son excepcionales ya que la cimentación es a base de hormigón antisísmico, utilizando un hormigón especial para la humedad. La fachada está compuesta por cerramientos exteriores de doble tabiquería con cámara de aire aislando a la vivienda térmica y acústicamente. El gres utilizado para el enlosado de la vivienda es de primera calidad y de líneas modernas, pudiendo el cliente elegir entre 3 modelos diferentes.
La pintura es lisa y de color blanco. La puerta de entrada a la vivienda es acorazada y la carpintería interior está lacada en blanco, con los herrajes y tiradores cromados. La vivienda cuenta con armarios empotrados modulares, vestidos en su interior con cajonera y acabado exterior en color blanco. La carpintería exterior de ventanas y balconeras son de aluminio tipo corredera y de color negro.
La cocina es de diseño con la encimera de Silestone y viene equipada, como oferta de lanzamiento, con un completo paquete de electrodomésticos. La vivienda viene equipada con la pre-instalación por conductos.
La ubicación es excelente ya que se encuentra en San Pedro del Pinatar, cerca de las lagunas de sal natural, puerto deportivo, playas, restaurantes, bares, restaurantes e instalaciones deportivas.
Los datos expuestos nos han sido facilitados por terceros como meramente informativos y se suponen correctos. Duplex Pisos no garantiza su veracidad. La oferta puede estar sujeta a imprecisiones, errores, omisiones no intencionadas, cambios de precio y / o la retirada del mercado sin previo aviso.
Piso en venta en Errenteria Galtzaraborda, Gipuzkoa EP1137
| Cookie | Duración | Descripción |
|---|---|---|
| d | 3 meses | Quantserve configura esta cookie para rastrear de forma anónima información sobre cómo los visitantes utilizan el sitio web. |
| Cookie | Duración | Descripción |
|---|---|---|
| __gads | 1 año 24 días | Google establece esta cookie en el dominio de DoubleClick, realiza un seguimiento del número de veces que los usuarios ven un anuncio, mide el éxito de la campaña y calcula sus ingresos. Esta cookie solo se puede leer desde el dominio en el que se encuentra actualmente y no rastreará ningún dato mientras navega por otros sitios. |
| _ga | 1 año 1 mes 4 días | Google Analytics configura esta cookie para calcular los datos de visitantes, sesiones y campañas y realizar un seguimiento del uso del sitio para el informe analítico del sitio. La cookie almacena información de forma anónima y asigna un número generado aleatoriamente para reconocer visitantes únicos. |
| _ga_* | 1 año 1 mes 4 días | Google Analytics configura esta cookie para almacenar y contar las visitas a la página. |
| _gat_gtag_UA_* | 1 minuto | Google Analytics configura esta cookie para almacenar una identificación de usuario única. |
| _gat_UA-* | 1 minuto | Google Analytics establece esta cookie para el seguimiento del comportamiento del usuario. |
| ANON_ID | 3 meses | Esta cookie, configurada por Tribal Fusion, recopila datos sobre las visitas de los usuarios al sitio web, para saber por ejemplo a qué páginas acceden los usuarios. |
| CONSENT | 2 años | YouTube establece esta cookie a través de vídeos de YouTube integrados y registra datos estadísticos anónimos. |
| suid | 1 año | Simpli. fi configura esta cookie para almacenar una ID de sesión distintiva. |
| Cookie | Duración | Descripción |
|---|---|---|
| __gpi | 1 año 24 días | El servicio Google Ads utiliza esta cookie para recopilar información de varios sitios web para reorientar anuncios. |
| IDE | 1 año 24 días | Las cookies de Google DoubleClick IDE almacenan información sobre cómo el usuario utiliza el sitio web para presentarle anuncios relevantes según el perfil del usuario. |
| mc | 1 año 1 mes | Quantserve configura la cookie mc para rastrear información anónima sobre cómo los visitantes usan el sitio web. |
| suid_legacy | 1 año | Recopila información sobre las preferencias del usuario y la interacción con el contenido de la campaña web que se utiliza en las plataformas de campaña CRM utilizadas por los propietarios de sitios web para promocionar eventos o productos. |
| test_cookie | 15 minutos | doubleclick.net establece esta cookie para determinar si el navegador del usuario admite cookies. |
| UserID1 | 3 meses | Adition configura esta cookie como una identificación anónima única para un visitante del sitio web. Esta identificación se utiliza para identificar al usuario entre sesiones y realizar un seguimiento de su actividad en el sitio web. Los datos recopilados se utilizan con fines de análisis. |
| Cookie | Duración | Descripción |
|---|---|---|
| ar_debug | 3 meses | La descripción no está disponible actualmente. |
| b | 1 year | Description is currently not available. |